Palazzina uffici | Vasto (CH)
Luogo: Vasto, zona industriale Porto di Vasto
Anno: 2013
Dimensioni: 1500 mq ca.
L’intervento riguarda la realizzazione di una palazzina per uffici all’interno di un contesto industriale.
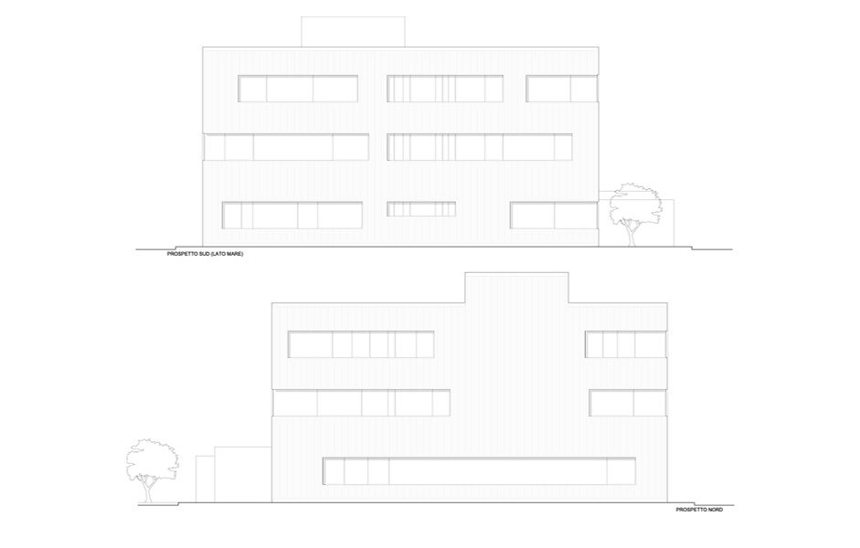
L’edifico è concepito con un rivestimento in metallo nobile brunito (o in alternativa di colore chiaro) applicato ad una facciata ventilata che ha come obiettivo l’ottenimento di un alto livello di confort energetico.
Il rivestimento è caratterizzato da un andamento ondulato intervallato da tratti di metallo piano inserito nei nastri che ospitano le aperture, quest’ultime risultano essere poste in sottosquadro rispetto al piano di facciata.
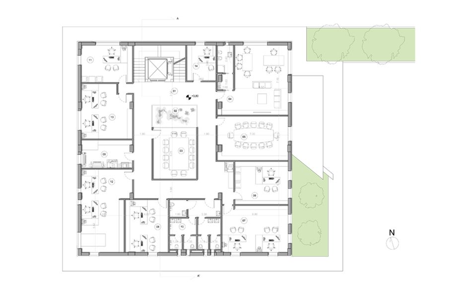
Al pian terreno sono poste diverse funzioni di rappresentanza; da un ampio foyer si accede direttamente alla sala conferenze, mentre sempre sullo stesso livello sono posti un punto di accoglienza, una sala per rinfreschi (utilizzabile anche dai dipendenti) e i servizi igienici.
Al pian terreno è inserita anche l’abitazione del custode, questa risulta essere completamente indipendente dalla palazzina uffici anche se è inserita al suo interno. E’ collocata in una posizione “strategica” dalla quale è possibile sorvegliare tutto il complesso.
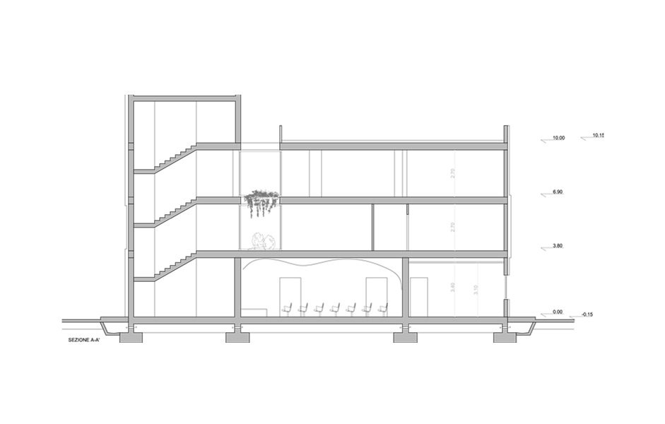
Gli uffici, dislocati nei due piani superiori, sono caratterizzati da una disposizione razionale volta ad economizzare al massimo gli spazi. Nonostante ciò, si è riusciti comunque ad ottenere degli ambienti di lavoro ampi, funzionali e confortevoli.
Sul livello di copertura sono previsti dei gazebo formati da una struttura metallica minimalista necessaria ad ospitare i pannelli fotovoltaici. Queste coperture sono state pensate sia per la produzione di energia elettrica sia come spazi dove è possibile organizzare rinfreschi con vista sul mare adriatico.












