Riqualificazione e parziale conversione di un parcheggio multipiano | San Salvo (CH)
Committente: Comune di San Salvo (CH)
Luogo: San Salvo (CH)
Anno: 2013
Risultato: 5° classificato
Il progetto prevede la riqualificazione e la parziale trasformazione del parcheggio multipiano sito in via Montegrappa nel comune di San Salvo (CH).
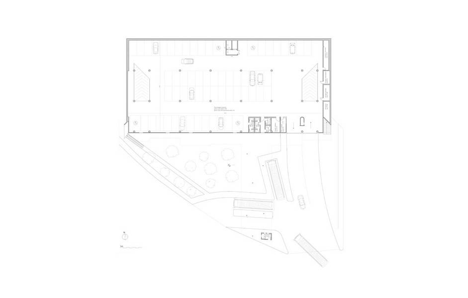
Attualmente la destinazione d’uso delle strutture è quella di parcheggio, è prevista la conservazione di questa per quanto concerne i due livelli inferiori, mentre nei livelli soprastanti si procederà ad un cambio di destinazione d’uso per realizzare attività commerciali, culturali e spazi pubblici.
L’edificio è posto in un’area caratterizzata da un pendio, situata a sud del nucleo storico di San Salvo, con il quale non risulta essere in relazione, di fatti dal piazzale antistante il parcheggio non è percepibile la vicinanza con il centro cittadino.
Il contesto nel quale si colloca l’intervento per la riqualificazione e la parziale trasformazione del parcheggio multipiano è una comune zona residenziale di intensità non troppo elevata senza particolare pregio dal punto di vista architettonico.
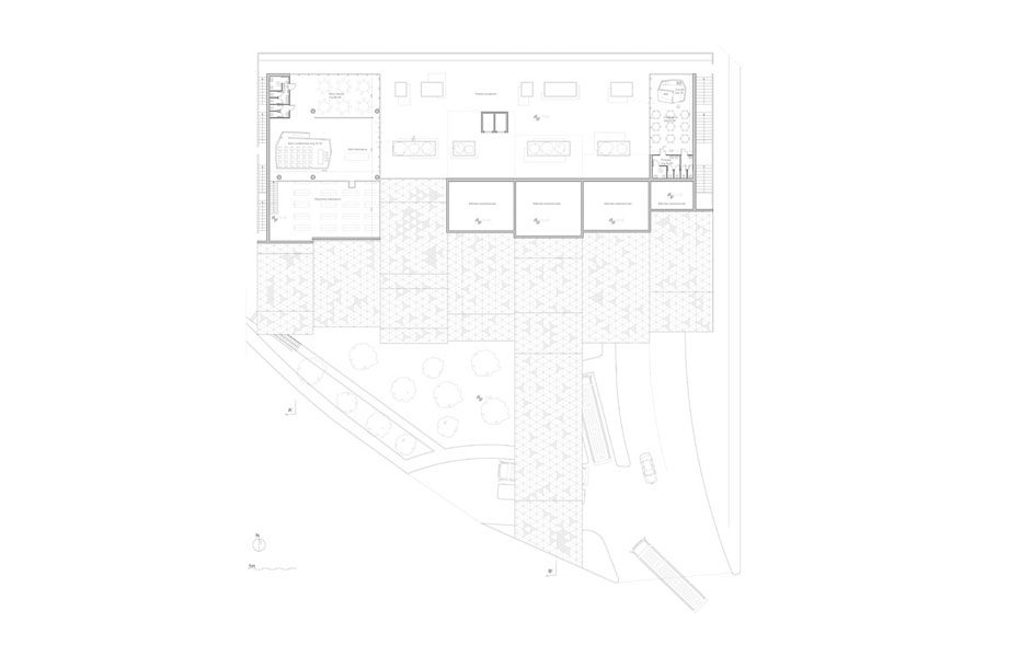
Aspetto fondamentale del progetto è la realizzazione di una copertura composta da sette fasce formate ognuna da diverse falde con inclinazioni differenti. Dette falde sono composte da struttura in acciaio con rivestimento di tegole triangolari di metallo nobile alternate a lastre triangolari di vetro con fotocellule solari integrate per la produzione di corrente elettrica.
L’opera ha come obiettivo la riqualificazione sia della struttura del parcheggio multipiano sia della zona circostante.
Proprio per la sua posizione all’interno del tessuto urbano cittadino, molto prossima al nucleo antico, è stata concepita per fungere da centro culturale – aggregativo – commerciale alternativo a quello esistente, in maniera tale da integrare gli altri servizi presenti nel centro cittadino.
La creazione di spazi verdi quali la piazza dell’ultimo livello e lo spazio vicino alle fermate dei bus costituiscono di fatto alcune delle poche aree verdi della zona.
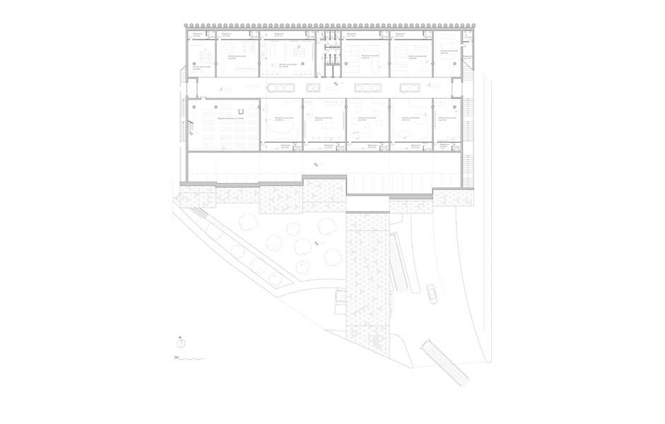
Il progetto prevede la conservazione dei primi due livelli dell’attuale parcheggio, attuando degli interventi minimi per garantire la sicurezza antincendio e l’adeguamento dei servizi igienici.
Il piano secondo è caratterizzato dalla presenza di undici attività commerciali di diversa metratura destinate ad essere affittate in maniera tale da contribuire all’ammortamento dell’opera.
Detti spazi commerciali pur essendo collocati al penultimo livello saranno caratterizzati dalla presenza simultanea della luce artificiale e naturale, di fatti quest’ultima penetrerà all’interno dei negozi grazie alle lastre di vetro facenti parte della copertura, e anche attraverso i lucernari costruiti all’interno della piazza scoperta soprastante.
I negozi saranno accessibili da uno spazio comune, una galleria che attraverserà tutto l’edificio, caratterizzata anche













