Casa per vacanze | Vasto (CH)
Luogo: Vasto (CH), loc. Vasto Marina
Anno: 2013
Dimensioni: 150 mq ca.
La casa monofamiliare è collocata all’interno di un complesso residenziale ed è concepita come abitazione per le vacanze.
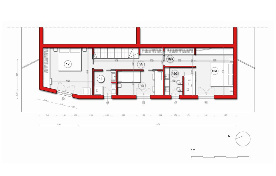
Gli spazi interni sono stati strutturati in base alle esigenze e a precise richieste della committenza. Al primo livello dell’edificio sono collocate una camera per gli ospiti e soprattutto, la zona giorno. Quest’ ultima è completamente rivolta verso spazio esterno, posta in diretta comunicazione con esso mediante grandi vetrate.
Fulcro dell’abitazione è sicuramente la grande sala da pranzo, dotata di una cucina a vista in muratura dalle linee moderne ed essenziali.
La scelta degli arredi e delle finiture degli spazi interni scaturisce da un compromesso tra lo stile moderno e lo stile delle abitazioni al mare.
Per il piccolo giardino è stato fatto un approfondito studio delle piante da utilizzare, mirato ad ottenere delle fioriture prolungate con il bianco come colore predominante.
Nello spazio esterno antistante l’abitazione è collocata una piscina dalle linee essenziali.










